1920s Basement ADU Transformation
Project Overview
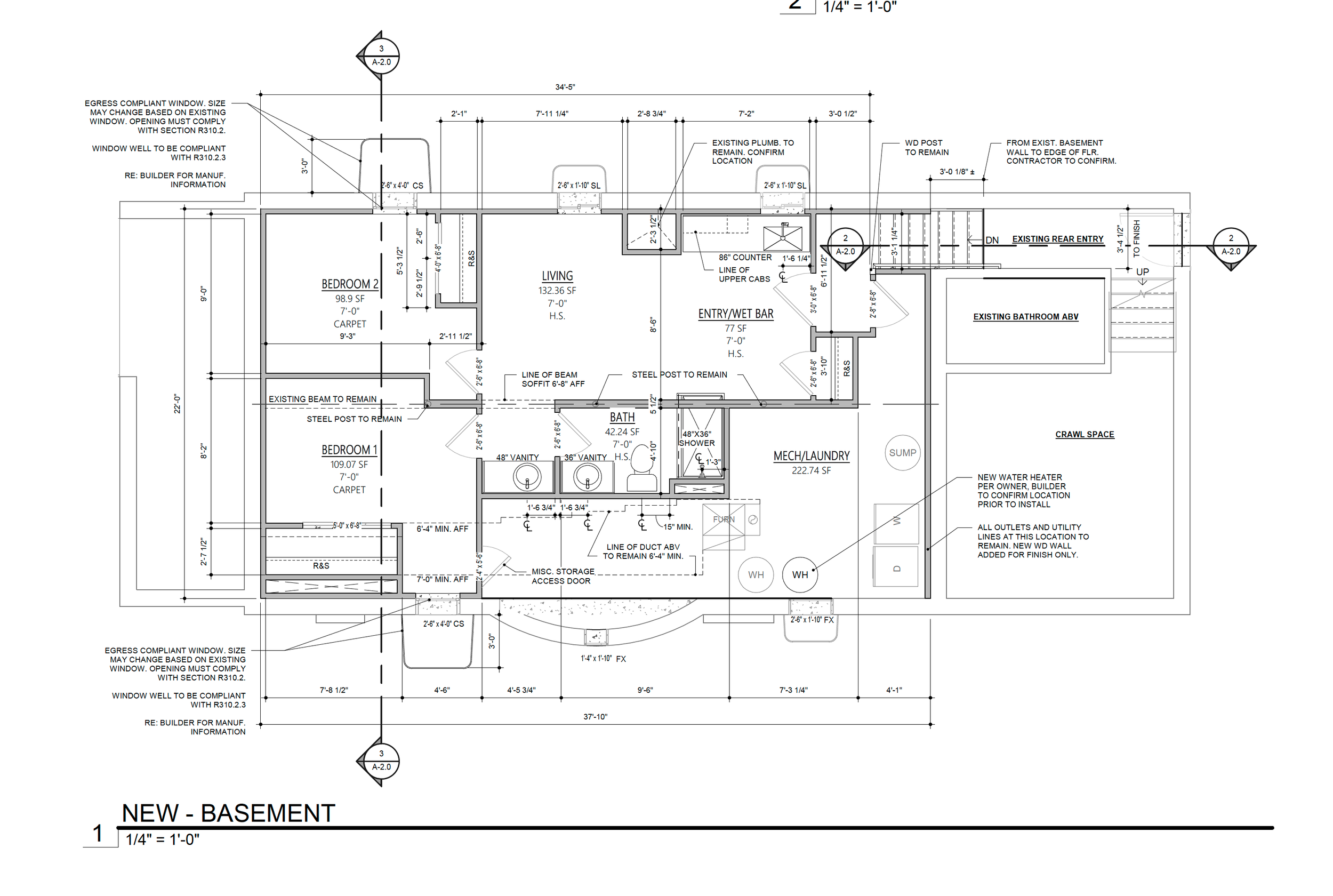
This project is one of many basement renovations Prenvalley Builders has completed throughout Denver. Due to the home’s age, dating back to the 1920s, the lower level presented several challenges, including aging concrete walls, settled framing, and uneven floors. Through careful construction and problem-solving, the basement was transformed into a fully functional lower-level ADU, and the homeowners were thrilled with the finished result.
Project Details
Size: 995 Sq. Ft.
Location: City Park, Denver, Colorado
Architectural Design: NAGY Design Co.
Our Approach
Prenvalley Builders carefully evaluated the existing 1920s structure, addressing uneven floors, aging concrete, and low-clearance conditions common in Denver basements. Through coordinated construction and code-compliant execution, the team delivered a durable, fully functional lower-level ADU that integrates seamlessly with the existing home.
Project Highlights
Converted a 1920s basement into a functional lower-level ADU
Addressed uneven floors, settled framing, and aging concrete
Built a complete living space with kitchen, bedroom, and bath
Added flexible, long-term living space and property value
Results
The completed basement renovation transformed the lower level into a fully functional, code-compliant ADU with dedicated living, sleeping, kitchen, and bathroom spaces. Despite the challenges of the home’s age and existing conditions, the finished space provides comfortable, long-term living while adding flexibility and value to the property.
Project Goals
Convert an underutilized basement into a fully functional ADU
Address structural and code challenges common in older Denver homes
Create comfortable, long-term living space within the existing footprint
Add flexibility and long-term value to the property
Common Questions about Accessory Dwelling Units
-
This varies quite a bit throughout Colorado based on your city’s specific zoning guidelines. The Colorado House Bill 24-1152 mandates that jurisdictions must allow ADUs between the size of 500 to 750 sq. ft. Our team are experts with zoning rules throughout the state and can provide you with a detailed breakdown of what’s possible.
-
We usually get asked how much an ADU costs per square foot but this is the hardest metric for an ADU since the cost per square foot parameter can vary drastically based on the size. This is due to the fact that ADUs are small compared to normal homes and the cost per sq. ft. can vary dramatically due to the economy of scale factor. Also, most of the ADUs we build have unfinished garages which complicates that metric even further. We’ve found that ADUs in Denver can vary on average from $250k to $450k based on size, finish level, and site constraints.
-
As of right now the average ROI ranges from 4 to 7 years until you begin seeing a net positive on your ADU investment which is based short term renting the space over that time. The problem with ADUs in Colorado is that there aren’t many comparables when appraisers are valuing these spaces so they are typically appraised at a lower value than they were built for. As more ADUs are built and sold with their primary homes, these numbers will improve so this ROI is very much temporary. As of now, ADUs are considered a long term investment and are definitely worth the consideration if you’re looking to hold onto your home for the long run.
-
In our experience thus far, the scale of an ADU hasn’t been proven to be built better or more cost effective in a modular format. The modular ADU on paper seems like a great idea but all of the companies we’ve seen provide them are at a comparable price point if not higher and quality issues can occur due to manufacturing, delivery, and assembly issues. We view ADUs as custom small homes that need to be built with care and craftsmanship which can easily be lost in a mass manufacturing process.

