704 5th St Golden, CO
Project Overview
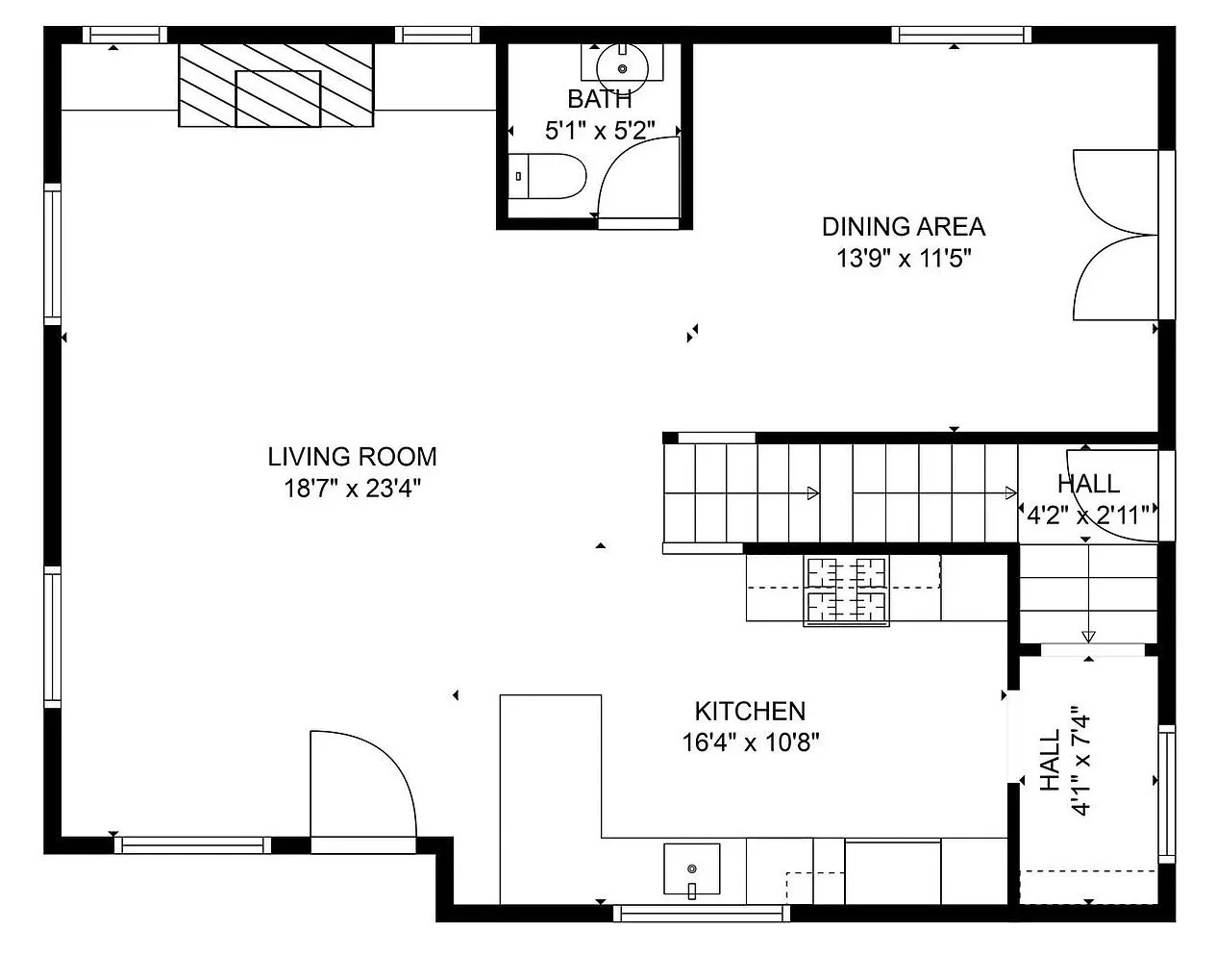
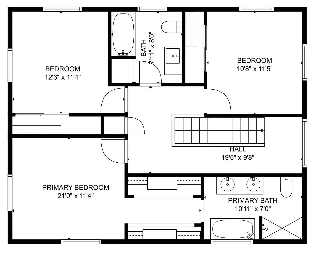
Our first pop-top (second story addition) project! This build featured an entire first floor remodel and a 800 sq. ft. second story addition. The second story added a master suite and 2 kids bathrooms with a shared kids bathroom. We loved this renovation project as it opened up so many doors for us and started our growth into the company we are today!

