Highlands Master Suite Addition
Project Overview
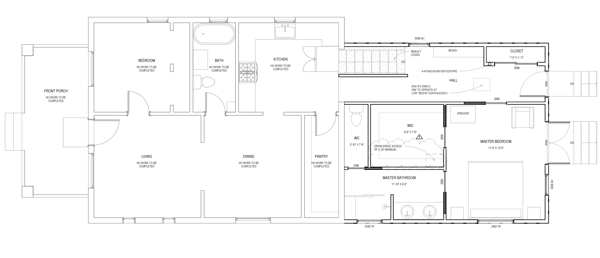
The homeowners wanted a private primary suite that added comfortable living space without overwhelming their yard or budget. Prenvalley Builders designed and built a thoughtfully planned primary suite addition with an ensuite bathroom, walk-in closet, new interior stair access, and a backyard patio with a gas fire pit. Working within site constraints and a modest footprint, the result is a functional, light-filled retreat that blends seamlessly with both the existing home and outdoor living space.
Project Details
Size: 500 sq ft
Location: Denver, Colorado
Architectural Design: Prenvalley Builders
Our Approach
Prenvalley Builders approached this primary suite addition with a focus on efficiency, thoughtful planning, and long-term durability. By coordinating structure, layout, and finishes early, the team delivered a streamlined build that stayed mindful of budget while maximizing comfort and usability. Careful integration ensured the new suite feels cohesive with the existing home and backyard.
Project Highlights
500 sq.ft. primary suite addition
New bedroom with walk-in closet and ensuite bathroom
Double vanity and glass-enclosed shower
Interior staircase providing improved cellar access
Backyard patio with integrated gas fire pit
Durable exterior siding and energy-efficient windows
Strong indoor–outdoor connection
Results
The completed primary suite addition provides the homeowners with a private, comfortable retreat that adds meaningful square footage and long-term value. Efficient planning and durable finishes allowed the project to stay mindful of budget while delivering a space that feels intentional and well-integrated. The new connection to the backyard patio enhances everyday living and makes the suite feel bright and welcoming.
Project Goals
Add a private primary suite to the existing home
Increase usable square footage without overbuilding
Stay mindful of budget while maintaining quality
Improve indoor–outdoor connection to the backyard
Enhance long-term comfort and property value
Common Questions about Home Additions
-
It depends on the type of addition. If it’s a single story addition off the back of your home we can definitely accommodate that but just be wary that noise is a consideration if you work from home. For second story additions (pop-tops) we typically request that the clients live somewhere else due to logistical reasons with plumbing and electrical. It’s also a very invasive process with life safety considerations as well as just daily living comfortability issues.
-
This can vary quite a bit on size but we’ve seen these projects range from 4-6 months in design/ plan review and 5 to 8 months in construction. You can consult our process sheet here!
-
Make sure to get an asbestos report early on to ensure that you or the construction team won’t be exposed during the project. Also, asbestos remediation can be expensive so that additional cost is good to know early on. Also, additions can be unpredictable - especially in older homes. Check if your contractor has considered all factors of the project (e.g. lath and plaster walls, unlevel floors, structural considerations, age of existing plumbing and electrical, etc.). Making sure your contractor is carrying a contingency budget on an addition is especially important because we typically don’t know what we’re going to find behind walls and floors until after demolition has been completed which can add additional cost.

