Golden Full Interior Renovation
Project Overview
This project involved a comprehensive, stud-to-studs interior renovation of an existing home in Golden, Colorado. The original structure presented significant structural, electrical, and insulation challenges, along with an inefficient 1970s layout that no longer supported modern family living. Prenvalley Builders approached the renovation holistically addressing core building systems, reworking circulation, and reprogramming interior spaces to create a cohesive, high-performing home designed for long-term use.
Project Details
Size: 3,500 sq. ft
Location: Golden,Colorado
Architectural Design: Prenvalley Builders
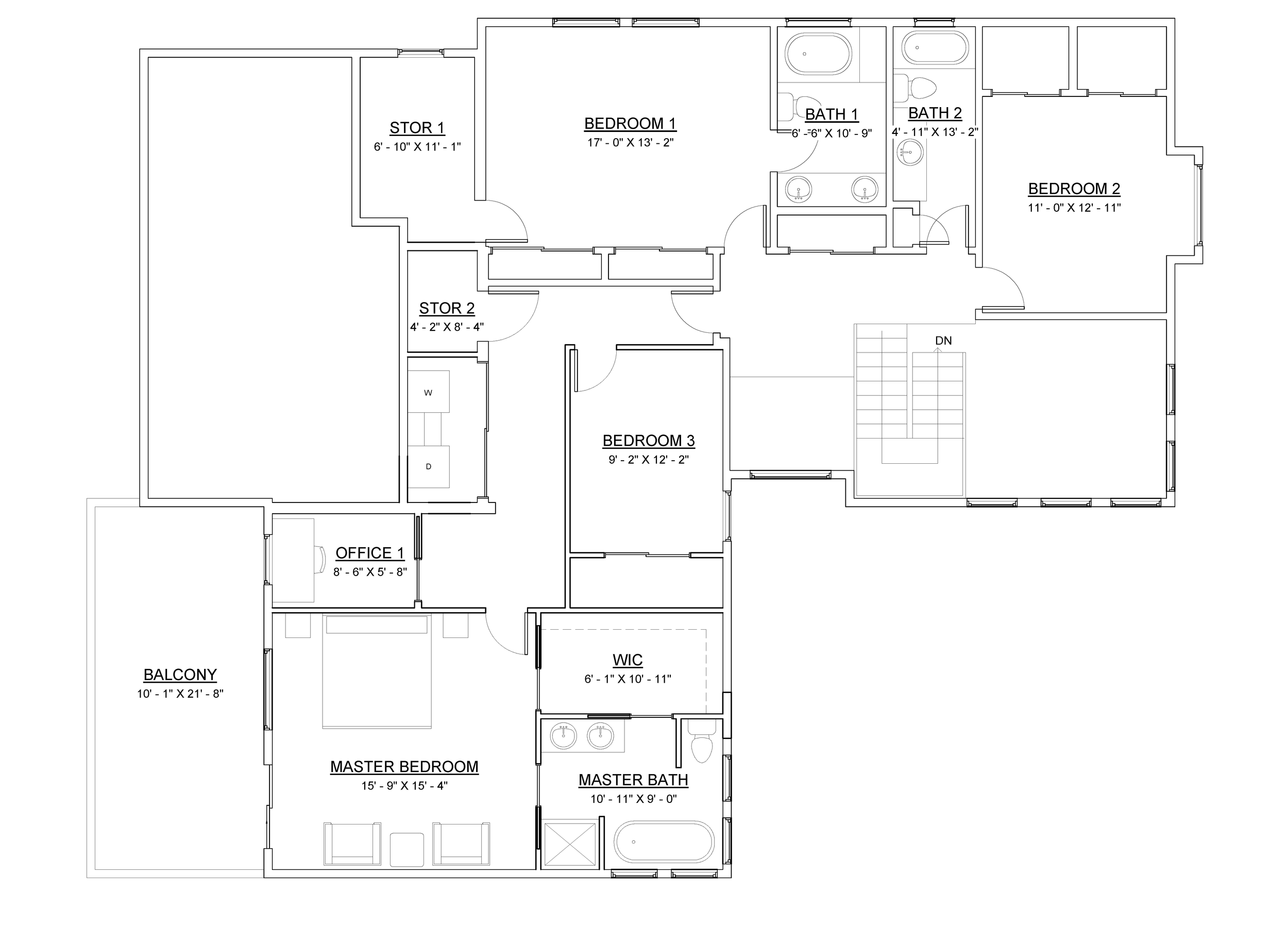
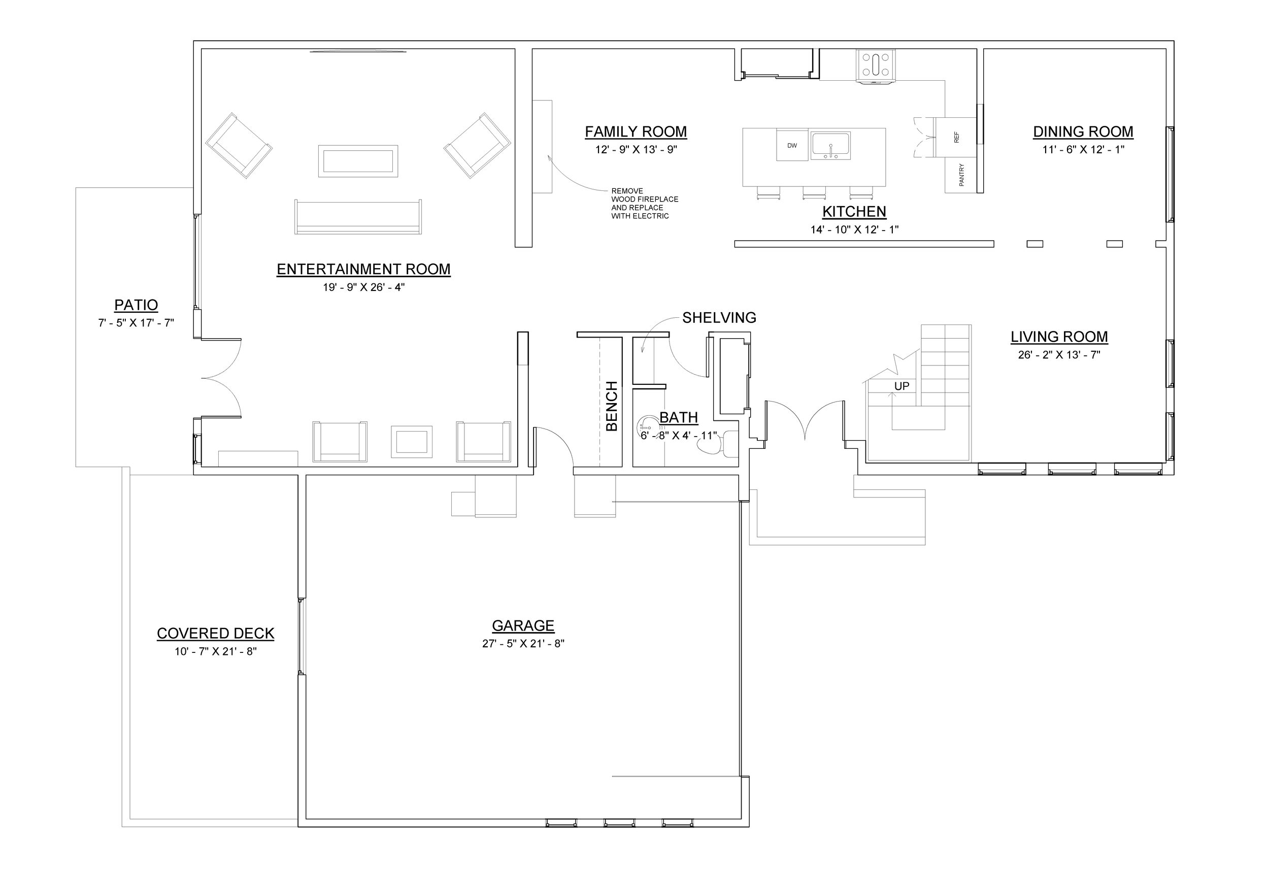
Before Renovation:
After Renovation:
Our Approach
As a design-build firm, Prenvalley Builders managed the project from initial assessment through construction completion, ensuring alignment between design intent, technical execution, and build quality. By addressing structural and systems-level challenges early, the team was able to deliver a renovation that not only improved aesthetics but significantly enhanced performance, comfort, and usability throughout the home.
Project Highlights
Design-Build Services
Full Interior Renovation
Structural & Systems Upgrades
Kitchen Renovation
Staircase Redesign
Lower-Level Renovation
Results
The completed renovation transformed an outdated, compartmentalized interior into a cohesive, light-filled home designed around how the homeowners live today. Improved circulation, thoughtful programming, and updated systems resulted in a space that feels open yet grounded, flexible yet intentional—supporting daily life while adding long-term value to the home.
Project Goals
Address structural, electrical, and insulation deficiencies through a full stud-to-studs renovation
Reconfigure the existing 1970s layout to improve circulation, usability, and natural light
Replace the original spiral staircase with a safer, more functional central stair
Create flexible living and recreation spaces that support modern family life
Deliver a cohesive, high-performing interior designed for long-term comfort and value
Common Questions about Home Renovations
-
We typically can accommodate the clients living in the home while these projects are happening as long as it’s not the majority of the home being renovated. If we can contain the area we’re working in to leave the clients a space to live in then that’s definitely a possibility. Another factor is whether a client is ready to live adjacent to a construction zone. The noise, dust, and lack of kitchen can be straining on most people so just make sure to keep that in mind!
-
Design and city plan review is typically pretty quick and can be designed/ approved within a month or two. Construction can vary based on size of scope and level of finish. For example a bathroom remodel is a little over a month for an average size bathroom, a custom kitchen renovation on average is 3 months, and a large interior renovation can be closer to 5 months. Keep in mind that our team prides itself on quality and always wants to make sure that our projects stand the test of time so we have a very thorough construction process which could add slightly more time throughout each step of the process.
-
Make sure to get an asbestos report early on to ensure that you or the construction team won’t be exposed during the project. Also, asbestos remediation can be expensive so that additional cost is good to know early on. Also, remodels are unpredictable - especially in older homes. Check if your contractor has considered all factors of the project (e.g. lath and plaster walls, unlevel floors, structural considerations, age of existing plumbing and electrical, etc.). Making sure your contractor is carrying a contingency budget on a remodel is especially important because we typically don’t know what we’re going to find behind walls and floors until after demolition has been completed which can add additional cost.

