Sunnyside ADU + Garage Addition
Project Overview
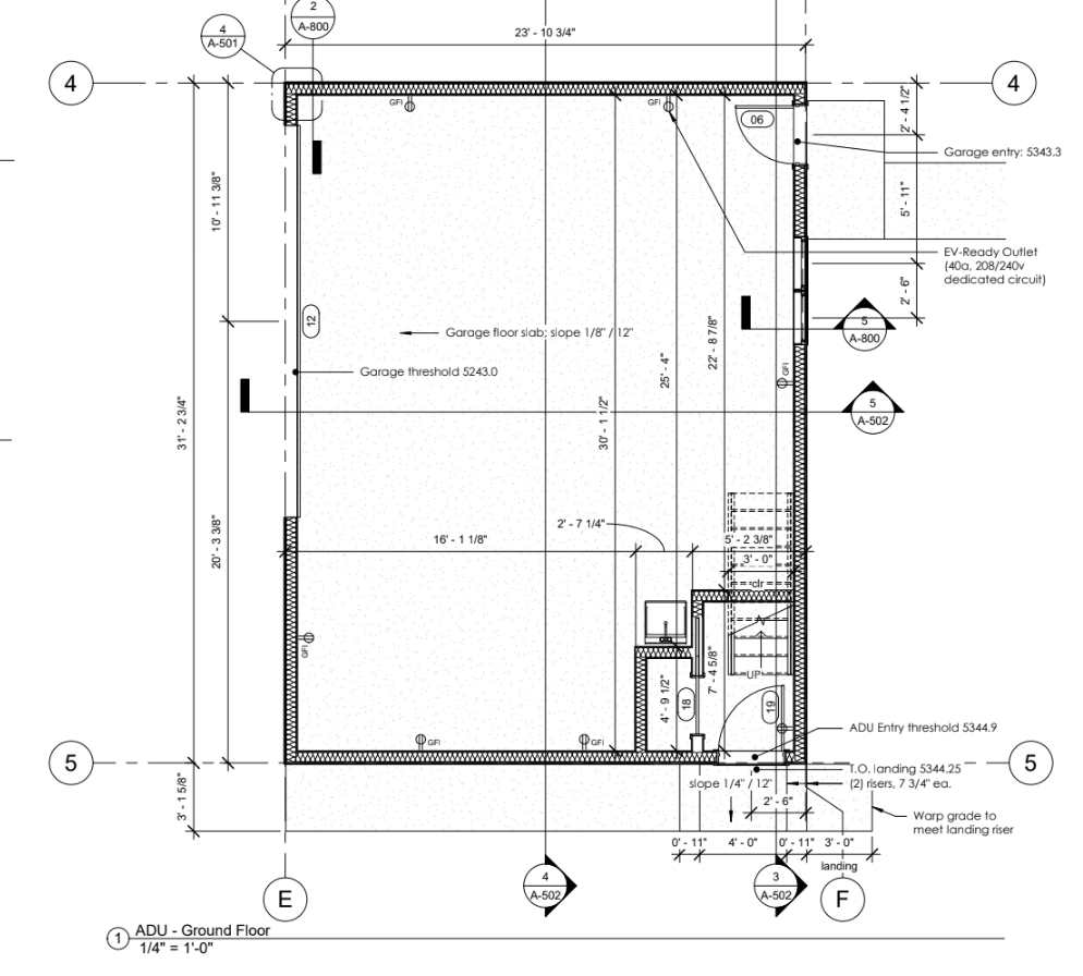
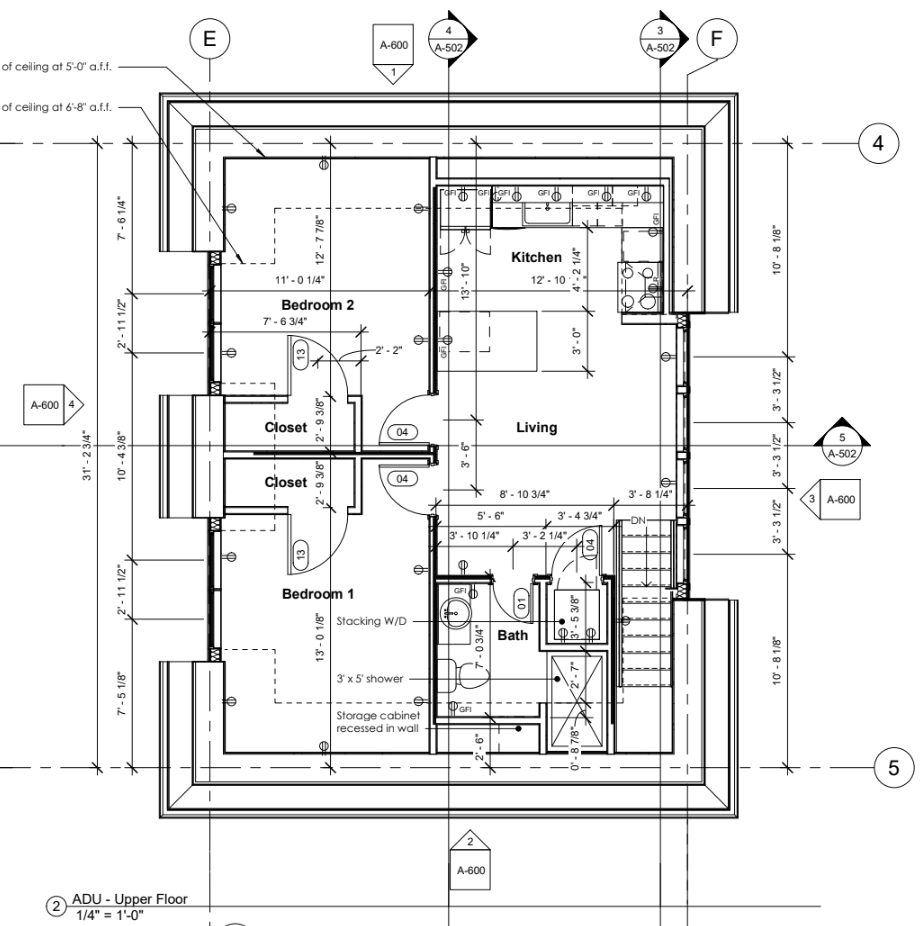
This beautiful Sunnyside ADU was completed in the summer of 2024. It features a 2.5 car garage, 2 bedrooms, 1 bathroom, a kitchen/ living area and vaulted ceilings/ dormers that provide a lot of character in and out of the structure.
Project Details
Size: ~1500 sq ft
Location: Denver, Colorado
Architectural Design: Radix Design
Our Approach
We approached this project with a focus on efficiency, thoughtful design, and responsible material use. Our design–build process allowed us to refine every detail—from structural framing to material selections—ensuring the ADU performed well in Colorado’s climate while maintaining long-term durability.
Project Highlights
Detached ADU with efficient layout
High-performance insulation & windows
Durable exterior materials for Colorado climate
Energy-efficient HVAC system
Low-waste construction practices
Thoughtful interior finishes
Seamless connection between garage + living space
Designed for both family use & rental income
Results
This ADU added significant long-term value to the property while providing flexible living options for the homeowners. The high-performance envelope, durable materials, and thoughtful design ensure comfort, efficient energy use, and lasting durability.
Project Goals
Increase usable square footage
Add long-term rental income potential
Improve energy performance
Blend seamlessly with existing architecture
Support multi-generational living
Modernize functionality
Common Questions about Accessory Dwelling Units
-
This varies quite a bit throughout Colorado based on your city’s specific zoning guidelines. Our team are experts with zoning rules throughout the state and can provide you with a detailed breakdown of what’s possible.
-
We usually get asked how much an ADU costs per square foot but this is the hardest metric for an ADU since the cost per square foot parameter can vary drastically based on the size. This is due to the fact that ADUs are small compared to normal homes and the cost per sq. ft. can vary dramatically due to the economy of scale factor. Also, most of the ADUs we build have unfinished garages which complicates that metric even further. We’ve found that ADUs in Denver can vary on average from $250k to $450k based on size, finish level, and site constraints.
-
As of right now the average ROI ranges from 4 to 7 years until you begin seeing a net positive on your ADU investment which is based short term renting the space over that time. The problem with ADUs in Colorado is that there aren’t many comparables when appraisers are valuing these spaces so they are typically appraised at a lower value than they were built for. As more ADUs are built and sold with their primary homes, these numbers will improve so this ROI is very much temporary. As of now, ADUs are considered a long term investment and are definitely worth the consideration if you’re looking to hold onto your home for the long run.
-
In our experience thus far, the scale of an ADU hasn’t been proven to be built better or more cost effective in a modular format. The modular ADU on paper seems like a great idea but all of the companies we’ve seen provide them are at a comparable price point if not higher and quality issues can occur due to manufacturing, delivery, and assembly issues. We view ADUs as custom small homes that need to be built with care and craftsmanship which can easily be lost in a mass manufacturing process.

