Thoughtfully Built Backyard ADU
Project Overview
The homeowners needed a compact, independent living space in their Denver backyard for a family member. Prenvalley Builders designed and built a detached ADU from the ground up, working within site constraints to create a fully functional, comfortable home. What makes this project special is how thoughtful planning and craftsmanship transformed a small footprint into a space that truly lives well.
Project Details
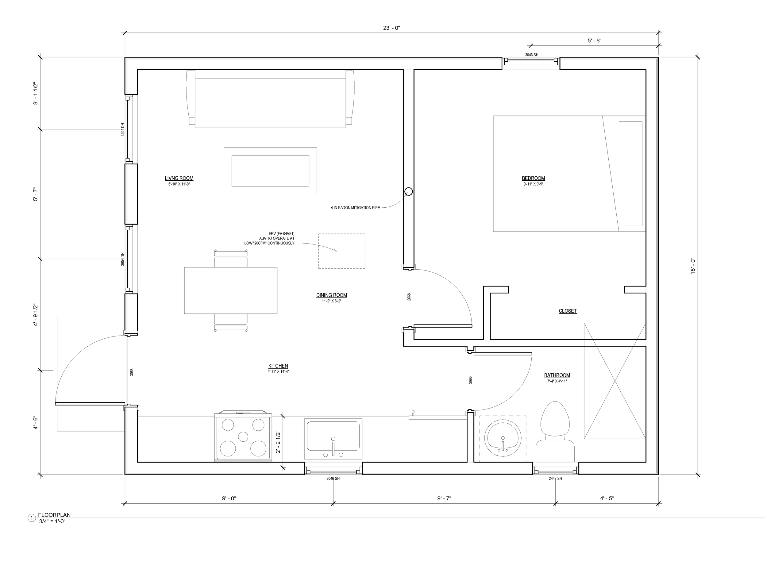
Size: 250 sq ft
Location: Denver, Colorado
Architectural Design: Prenvalley Builders
Our Approach
Prenvalley Builders approached this ADU with a focus on smart planning, efficient construction, and long-term livability. By managing the design-build process from permitting through completion, the team ensured every square foot was used intentionally while maintaining quality, durability, and code compliance. The result is a well-executed Denver ADU that balances practicality with thoughtful design.
Project Highlights
Detached, ground-up ADU construction
Compact, efficient floor plan
Full kitchen and bathroom
Dedicated bedroom with storage
Durable, low-maintenance exterior materials
Energy-efficient systems and lighting
Rooftop solar integration
Results
The completed ADU provides a comfortable, independent living space that feels complete and thoughtfully built despite its compact size. By focusing on efficiency, durability, and quality execution, Prenvalley Builders delivered a home that supports everyday living while fitting seamlessly into the existing property.
Project Goals
Create an independent living space for a family member
Maximize functionality within a compact footprint
Deliver a durable, low-maintenance ADU
Support long-term comfort and everyday livability
Integrate the ADU seamlessly into the existing property
Common Questions about Accessory Dwelling Units
-
This varies quite a bit throughout Colorado based on your city’s specific zoning guidelines. Our team are experts with zoning rules throughout the state and can provide you with a detailed breakdown of what’s possible.
-
We usually get asked how much an ADU costs per square foot but this is the hardest metric for an ADU since the cost per square foot parameter can vary drastically based on the size. This is due to the fact that ADUs are small compared to normal homes and the cost per sq. ft. can vary dramatically due to the economy of scale factor. Also, most of the ADUs we build have unfinished garages which complicates that metric even further. We’ve found that ADUs in Denver can vary on average from $250k to $450k based on size, finish level, and site constraints.
-
As of right now the average ROI ranges from 4 to 7 years until you begin seeing a net positive on your ADU investment which is based short term renting the space over that time. The problem with ADUs in Colorado is that there aren’t many comparables when appraisers are valuing these spaces so they are typically appraised at a lower value than they were built for. As more ADUs are built and sold with their primary homes, these numbers will improve so this ROI is very much temporary. As of now, ADUs are considered a long term investment and are definitely worth the consideration if you’re looking to hold onto your home for the long run.
-
In our experience thus far, the scale of an ADU hasn’t been proven to be built better or more cost effective in a modular format. The modular ADU on paper seems like a great idea but all of the companies we’ve seen provide them are at a comparable price point if not higher and quality issues can occur due to manufacturing, delivery, and assembly issues. We view ADUs as custom small homes that need to be built with care and craftsmanship which can easily be lost in a mass manufacturing process.

