Large-Scale Urban ADU
Project Overview
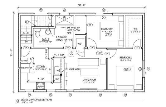
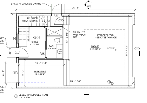
The homeowners needed a large, flexible ADU with space for a second bedroom, home office, and workshop while keeping finishes modest to manage costs. Prenvalley Builders designed and built a two-story, garage-integrated ADU that maximizes usable square footage on a compact Denver lot. What makes this project special is its scale and versatility, making it one of Prenvalley’s largest ADUs to date while remaining efficient and thoughtfully planned.
Project Details
Size: 1680 sq ft
Location: Denver, Colorado
Architectural Design: Prenvalley Builders
Our Approach
Prenvalley Builders approached this ADU with a design-build strategy focused on efficiency, flexibility, and long-term use. By carefully coordinating layout, structure, and systems from the start, the team maximized square footage while keeping construction costs in check. The result is a well-balanced ADU that reflects Prenvalley’s experience building high-performing, thoughtfully planned spaces in Denver’s urban neighborhoods.
Project Highlights
One of Prenvalley’s largest ADUs to date
Two-story layout maximizing usable square footage
Integrated garage with EV-ready capability
Flexible office and workshop spaces
Two-bedroom upper-level living plan
Cost-conscious material selections
High-performance building envelope
Roll up garage door making backyard and workshop versatile
Results
The completed ADU delivers a spacious, flexible living environment that supports work, storage, and everyday living within a compact urban footprint. Thoughtful planning and efficient construction allowed the project to balance scale and budget while maintaining long-term performance. The result is a highly functional ADU designed to adapt to changing needs over time.
Project Goals
Maximize usable square footage within zoning constraints
Create flexible spaces for living, working, and storage
Maintain cost control through modest finish selections
Support long-term adaptability and functionality
Deliver a durable, high-performance ADU for urban living
Common Questions about Accessory Dwelling Units
-
This varies quite a bit throughout Colorado based on your city’s specific zoning guidelines. Our team are experts with zoning rules throughout the state and can provide you with a detailed breakdown of what’s possible.
-
We usually get asked how much an ADU costs per square foot but this is the hardest metric for an ADU since the cost per square foot parameter can vary drastically based on the size. This is due to the fact that ADUs are small compared to normal homes and the cost per sq. ft. can vary dramatically due to the economy of scale factor. Also, most of the ADUs we build have unfinished garages which complicates that metric even further. We’ve found that ADUs in Denver can vary on average from $250k to $450k based on size, finish level, and site constraints.
-
As of right now the average ROI ranges from 4 to 7 years until you begin seeing a net positive on your ADU investment which is based short term renting the space over that time. The problem with ADUs in Colorado is that there aren’t many comparables when appraisers are valuing these spaces so they are typically appraised at a lower value than they were built for. As more ADUs are built and sold with their primary homes, these numbers will improve so this ROI is very much temporary. As of now, ADUs are considered a long term investment and are definitely worth the consideration if you’re looking to hold onto your home for the long run.
-
In our experience thus far, the scale of an ADU hasn’t been proven to be built better or more cost effective in a modular format. The modular ADU on paper seems like a great idea but all of the companies we’ve seen provide them are at a comparable price point if not higher and quality issues can occur due to manufacturing, delivery, and assembly issues. We view ADUs as custom small homes that need to be built with care and craftsmanship which can easily be lost in a mass manufacturing process.

